Größenveränderung von 360 - 490 m² möglich
Für weitere Ansichten und Pläne klicken Sie auf die Pfeile im Bild
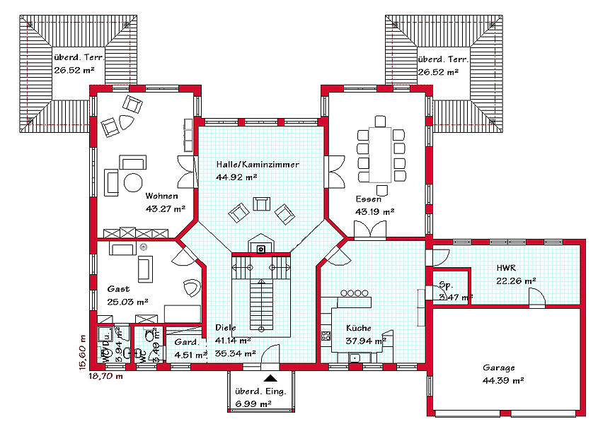
Landhaus mit umlaufendem Balkon (L752)
Wohnen mit Stil, das ist bei diesem Landhaus mit großem umlaufenden Balkon nicht nur ein Versprechen, sondern absolute Gewissheit. Bei diesem großzügig geschnittenen Einfamilienhaus stehen Ihnen und allen weiteren Bewohnern insgesamt 421,9 m² zur Verfügung, auf denen gelebt, geliebt und gearbeitet werden kann. Das luxuriöse Erscheinungsbild setzt sich in der weitläufigen Gestaltung des Innenlebens fort, wo im Erdgeschoss 269,4 m² und im Obergeschoss 152,5 m² geboten werden. Die Wohnfläche wird in diesem Landhaus von Wohnzimmer, Esszimmer, Halle mit Kaminzimmer, Gästezimmer, Küche, Diele, Garderobe, WC, WC mit Dusche, Hauswirtschaftsraum, 2 Kinderzimmern mit Kinderbad, Badezimmer, Schlafzimmer und Ankleidezimmer eingenommen, was Ihnen viel Platz für die Verwirklichung all Ihrer Wohnideen bietet. Besondere Highlights dieses exklusiven Landhauses sind der umlaufende Balkon und die zwei überdachten Terrassen.
Der einfache Hausbau
Von einem einfachen Hausbau kann erst dann gesprochen werden, wenn von der Planungsphase über den tatsächlichen Hausbau bis hin zu dem Moment, in dem das Massivhaus schlüsselfertig an seinen neuen Besitzer übergeben wird, keine Probleme und Fristüberschreitungen aufgetreten sind. Mit RHEIN-MAIN HAUSBAU können Sie dieses traumhafte Landhaus mit großem Balkon in nur 16 Wochen bauen lassen, was über die garantierte Bauzeit versprochen wird. So können Sie Ihren Traum vom Einfamilienhaus mit zuverlässigen Terminen verwirklichen.
Wohnwelten Rhein-Main Hausbau GmbH
Ludwig-Erhard-Straße 9
61118 Bad Vilbel
info@rheinmain-hausbau.de
Telefon: 0176 - 23846817




