Größenveränderung von 160 - 230 m² möglich
Für weitere Ansichten und Pläne klicken Sie auf die Pfeile im Bild
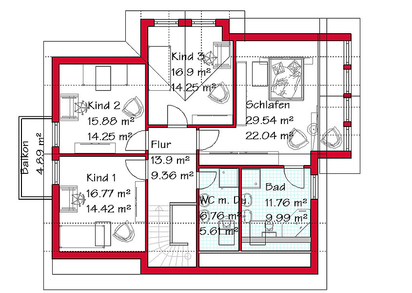
Familienfreundliches Mehrgiebelhaus (G355)
Wenn Sie mit Ihrer Familie in ein neues Zuhause einziehen möchten, dann sollte dieses Einfamilienhaus auch genau an die eigenen Bedürfnisse, Ansprüche und Vorstellungen angepasst sein. Dieses Mehrgiebelhaus besitzt alle Voraussetzungen, um ein echtes Traumhaus für Sie und Ihre Familie zu werden. Die insgesamt 196,8 m² sind auf Erdgeschoss und Dachgeschoss verteilt und ermöglichen so viel Raum, um darauf selbst die ausgefallensten Wohnideen zu realisieren. Auf den 106,2 m² des Erdgeschosses sind Arbeitszimmer, WC mit Dusche, Hauswirtschaftsraum, Diele, Wohn-/Essbereich und die Küche angelegt. Im Dachgeschoss stehen auf 90,6 m² 3 Kinderzimmer, Schlafzimmer, WC mit Dusche und Bad zur Verfügung. Auf dem eigenen Balkon können Sie die Freizeit im eigenen Mehrgiebelhaus genießen.
Sorgenfrei ins Einfamilienhaus
Es ist nicht immer mit Stress, Zeitdruck und zahlreichen Problemen verbunden, wenn Sie ein eigenes Haus bauen möchten. Mit den Experten von RHEIN-MAIN HAUSBAU kommen Sie einfach, pünktlich und ohne Stress ins neue Massivhaus. Dafür steht nicht nur die garantierte Bauzeit von 16 Monaten, sondern auch die individuelle Planung mit dem RHEIN-MAIN HAUSBAU-Architekten sowie die sorgfältige, zuverlässige und flexible Umsetzung. So wird die Wartezeit während des Hausbaus für Sie zu einer Zeit der Vorfreude. Entscheiden Sie sich für dieses moderne Mehrgiebelhaus von RHEIN-MAIN HAUSBAU und beginnen Sie gemeinsam mit Ihrer Familie ein Leben im Massivhaus nach Maß.
Wohnwelten Rhein-Main Hausbau GmbH
Ludwig-Erhard-Straße 9
61118 Bad Vilbel
info@rheinmain-hausbau.de
Telefon: 0176 - 23846817




