Größenveränderung von 170 - 240 m² möglich
Für weitere Ansichten und Pläne klicken Sie auf die Pfeile im Bild
Mehrgiebelhaus in außergewöhnlichem Stil (A470)
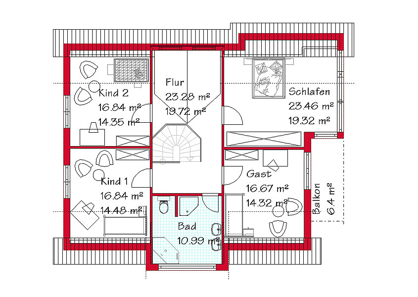
Dieses Massivhaus ist nicht nur wegen seinem großzügigen Angebot an Wohnfläche interessant, es weist auch eine ansehnliche und exklusive Optik auf. Das Mehrgiebelhaus besticht durch kreative Gestaltung bei gleichzeitig wohldurchdachter Aufteilung der Wohnfläche. Dieses moderne Einfamilienhaus weist insgesamt 205,0 m² Gesamtwohnfläche auf, die von Ihnen und Ihren Lieben frei gestaltet und bewohnt werden können. Das Erdgeschoss umfasst 108,6 m², worauf Speisekammer, WC, Diele, Büro, Küche/Esszimmer und Wohnzimmer/Esszimmer angelegt sind. Die 96,4 m² des Dachgeschosses verteilen sich auf 2 Kinderzimmer, Bad, Gästezimmer, Flur und Schlafzimmer. Frische Luft können Sie dabei auf dem Balkon schnappen.
Hausbau mit Plan
Entscheiden Sie sich für dieses exklusive Mehrgiebelhaus und beginnen Sie schon bald mit der individuellen Planung. Diese können Sie gemeinsam mit dem RHEIN-MAIN HAUSBAU-Architekten durchführen und so Ihre persönlichen Wünsche fachmännisch umgesetzt wissen. Der Hausbau selbst wird von zuverlässigen Handwerksbetrieben übernommen. RHEIN-MAIN HAUSBAU realisiert flexibel all Ihre Wünsche vom Einfamilienhaus und gibt Ihnen zusätzlich die garantierte Bauzeit von 16 Wochen mit an die Hand. Nach dieser Frist ist Ihr Massivhaus schlüsselfertig oder Sie erhalten für jede überfällige Woche 2500 Euro vom Kaufpreis erlassen.
Wohnwelten Rhein-Main Hausbau GmbH
Ludwig-Erhard-Straße 9
61118 Bad Vilbel
info@rheinmain-hausbau.de
Telefon: 0176 - 23846817




